您的位置:主页 > 新闻 > 行业新闻 >

泰国普吉The Deck公寓,3米出挑阳台,将美景尽收眼底

2019-09-24

来源:ArchDaily 


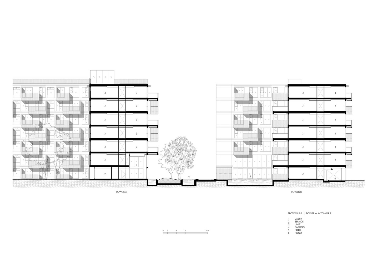
The Deck距离世界闻名的普吉岛巴东海滩仅几步之遥。该项目是一座七层公寓,被分成两栋楼以得到最多周边山海的景色,同时鼓励人们投入大自然中的户外生活方式。
 

为了与地形的独特形状配合,两栋楼的轴线与指向安达曼海的场地平行。在前栋楼,在屋顶上的无边际泳池为人们带来了震撼的海洋全景画。同时在后栋楼,一个在地面上的大泳池是所有设施的中心,也成为两楼相连的桥梁。每个单元间都设有落地铝窗,每套公寓的宽度也长于它的深度。正因如此,这样的比例使得自然光可以到达室内的最深处。并且,每间的卫生间都位于外立面窗户旁,以得到足够的光照和通风。
 


The Deck 之所以叫 The Deck,是因为它独特的外表。不同种类的单元组合与悬挑出来的阳台构成了它特别的外立面图案与格外宽敞的户外空间。阳台悬空出来的长度在2.2米到3.3米之间,这样的空间鼓励着人们多多在自然光线中参与户外活动。单一的铝制扶手被设计成合适的角度以保证隐私性和储置空调外机。除此之外,铝复合材料所制的阳台天花板是明亮的海洋蓝色,这样它们就会与安达曼海的颜色相融,也完美呈现了巴东海滩夜生活的代表色。同样的设计,如果采用钢结构构件,会出现什么样的效果呢?一个优秀的建筑设计会给人带来启发和联想。


The Deck是在这美丽景色中的一栋中高型建筑。项目被仔细地设计融入进它所处的环境之中。因为它迷人的外表和原始的元素,The Deck便成为了普吉岛上最出众的建筑之一。